73 B

Kuvat otettu remontin loppuvaiheilla 2014 sekä kesällä 2022.

 

Keittiö
Keittiöstä löytyy puuhella, sähköhella, astianpesukone sekä jääkaappipakastin. Koivuvaneriset keittiökaappien rungot ja kokopuiset koivuovet. Iso posliininen tiskiallas.

Lattia jopa 30cm leveää suopakuurattua kuusilankkua. Pöydän alla myös lattialuukku hillojen ym. säilyttämistä varten.

Perinteiset posliiniset sähkökatkaisijat.

Olohuone
Kulmassa suuri varaava pönttöuuni. Lattia jopa 30cm leveää suopakuurattua kuusilankkua.

Antenni- ja datapistokkeet sekä riittävästi sähköpistokkeita.

Makuuhuone
Lattia jopa 20cm leveää suopakuurattua kuusilankkua.

Antenni- ja datapistokkeet sekä riittävästi sähköpistokkeita.

Kylpyhuone
Suihkukaappi valolla, radiolla, isolla sadettimella ja usealla pienellä suuttimella.

Pesuallaskaappi bideesuihkulla. Pesukoneliitäntä.

Eteinen #1

Näkymä päätykuistilta puutarhaan

 

Detaljeja asunnosta

Olohuoneen valokatkaisija

Keittiön puuhella

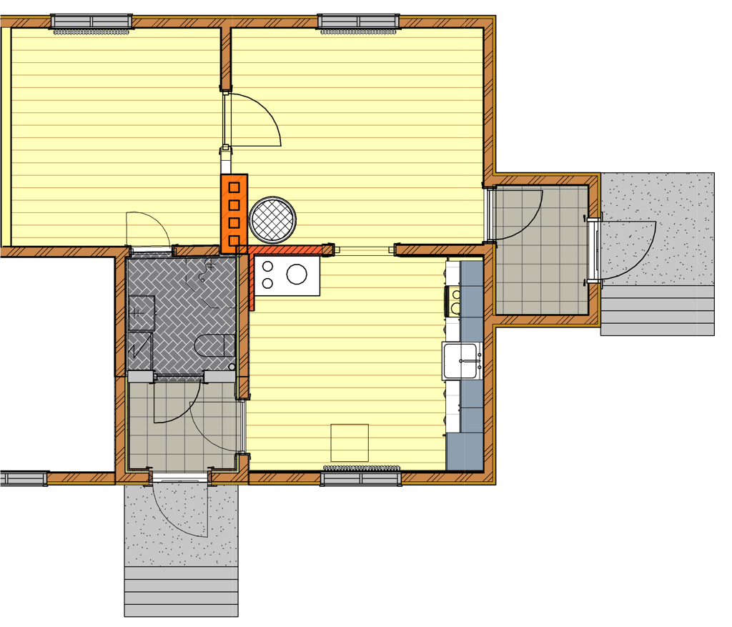
Pohjapiirustus

Vasemmassa alakulmassa ns. keittiöeteinen. Oikealla talon päädyssä sijaitseva pääsisäänkäynti.

Kylpyhuone huoneiston keskellä.